Borrar
Imagen de una de las catas, según el informe remitido a la Comisión Territorial de Patrimonio.

La ampliación del Parque Tecnológico de León queda pendiente de una decena de sondeos en busca de vestigios romanos

La Comisión de Patrimonio deja pendiente la valoración de las excavaciones arqueológicas a la espera de nuevas catas en zonas de propiedad pública ante la negativa de las propietarios a permitir que se acometan catas en sus fincas

J. Calvo

León

Miércoles, 1 de marzo 2023, 08:10

Comenta

La ampliación del Parque Tecnológico de León, un proyecto considerado de interés regional y capital en la apuesta de la Junta por la implantación de empresas del sector i+d+i en la capital, queda ahora pendiente del preceptivo informe arqueológico del área.

Pese a la celeridad que se quiere aplicar al desarrollo de este área industrial lo cierto es que por el momento los plazos quedan marcados por la necesidad de una decena de catas arqueológicas previas.

Inicialmente las mismas se proyectaron sobre áreas urbanas de propiedad privada lo que propició que los titulares de la finca negaran los permisos para que la maquinaria pisara terreno de su propiedad.

Zona del campamento romano

Ante esa eventualidad la Junta ha conocido un informe del arqueólogo del Servicio Territorial en el que se comunica que tan solo se ha podido realizar una cata de las tres previstas en el área en la que se supone en su día se ubicó un campamento romano.

Se trata de un campamento ordinario (previsiblemente con tiendas de campaña) rodeado por un foso ya localizado y «muy habitual en los campamentos romanos de la época».

Ahora se queda a la espera de autorización para trasladar las catas a otros puntos del espacio público a la espera de que se pueda realizar el Plan Regional previo a las expropiaciones. Una vez acometido el mismo no se descartan nuevas catas arqueológicas en el área determinando entonces si procede mantener el proyecto inicial o, en su defecto, se modifica el mismo si se precisara algún tipo de conservación.

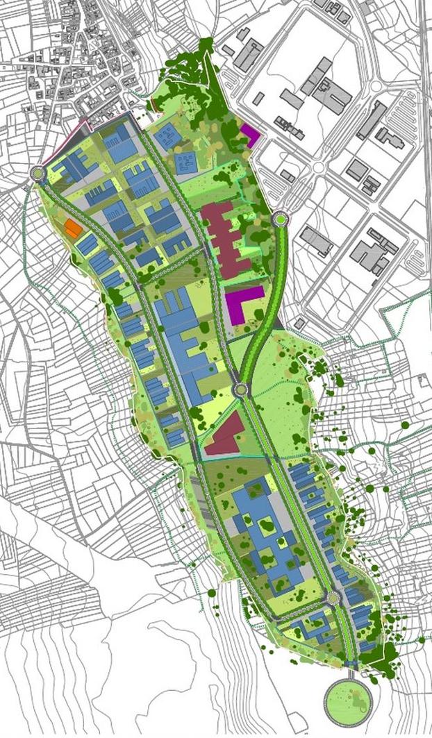
Imagen de la zona en la que se proyecta la ampliación del Parque Tecnológico de León.

El proyecto

El proyecto básico de desarrollo urbano para el Parque Tecnológico de León supone hoy llevar el mismo a las puertas de la pedanía de Oteruelo, desde su actual cementerio en dirección sur y desde ese punto hacia el este y el oeste. La medida supone ocupar una zona paseable compuesta por terreno urbano y rústico.

El proyecto contempla ocupar 521.421,31 metros cuadrados de terreno que pertenece tanto a una empresa madrileña (Vitra) como a los vecinos de Oteruelo. Ahora se procederá a reconvertir todo el terreno en industrial para su desarrollo final de acuerdo al proyecto de ampliación rediseñado por los técnicos.

Vitra

Vitra adquirió en su día una importante parte de los terrenos de la pedanía para realizar una macrourbanización en la zona. En concreto se hizo mediante oferta a los titulares con 32.000 metros cuadrados en área urbana y que ahora tendrán que ser expropiados tras una década de proyecto fallido. Otros 60.000 metros cuadrados de zona urbana perteneciente a los vecinos y próxima a las últimas calles son de propiedad los vecinos, los mismos que extienden su propiedad hacia la ronda sur en diferentes terrenos.

De 32 a 79 hectáreas

En su detalle la ampliación supone que esta zona industrial pasará de 32 hectáreas a 79 hectáreas con una inversión de 10 millones de euros «que podría llegar a los 15 millones», según se aseguró en la presentación del proyecto el pasado mes de noviembre.

En la actualidad el Parque Tecnológico de León cuenta con 34 empresas con una facturación conjunta de 100 millones de euros. Cada día 1.400 personas trabajan en unas empresas que se han incrementado en un 15% en los últimos dos años.

Esta funcionalidad es exclusiva para registrados.

Reporta un error en esta noticia

* Campos obligatorios

leonoticias La ampliación del Parque Tecnológico de León queda pendiente de una decena de sondeos en busca de vestigios romanos

La ampliación del Parque Tecnológico de León queda pendiente de una decena de sondeos en busca de vestigios romanos